
蒸汽鍋爐:革新工業生產的能量之源
蒸汽鍋爐的歷史淵源
蒸汽鍋爐???為工業生產的重要動力裝置,承載著工業文明的發展歷程。最早的蒸汽鍋爐可以追溯到18世紀末的工業革命時期,當時人們開始意識到蒸汽的巨大潛力,從而催生了蒸汽鍋爐的誕生。
蒸汽鍋爐的工作原理
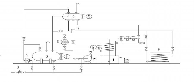
蒸汽鍋爐通過燃燒燃料產生熱量,將水加熱生成蒸汽,利用蒸汽的高壓驅動機械設備進行工業生產。蒸汽鍋爐的工作原理簡單而又精妙,體現了人類對能源的巧妙利用。
蒸汽鍋爐的應用領域
蒸汽鍋爐廣泛應用于各個領域,包括工業制造、能源生產、暖通空調等。一臺1噸燃氣鍋爐每年節省5萬燃料費用,一臺10噸鍋爐每年更可節省50萬燃料費用,這些數字充分展示了蒸汽鍋爐在節能減排方面的重要性。
蒸汽鍋爐的未來發展
隨著科技的不斷進步,蒸汽鍋爐的形態和性能也在不斷演變。燃改生物質鍋爐更是將綠色能源與蒸汽鍋爐結合,少40%燃料費用的節能效果讓人驚嘆。未來,蒸汽鍋爐將更加智能化、高效化,為工業生產提供更可靠的動力支持。
蒸汽鍋爐的維護與管理
蒸汽鍋爐的運行需要定期維護保養,確保其穩定高效運行。幸運的是,現代蒸汽鍋爐已實現無需停爐清灰,365天不停產的優勢,大大???升了生產效率和安全性。
蒸汽鍋爐作為工業生產的重要裝置,承載著巨大的能源壓力,但也為人類社會帶來了巨大的發展動力。隨著技術的不斷創新與發展,蒸汽鍋爐必將在未來發揮更加重要的作用,為推動工業文明的進步貢獻自己的力量。
常見問題解答:
蒸汽鍋爐如何節省燃料費用?

蒸汽鍋爐的未來發展方向是什么?
本文【蒸汽鍋爐】由中正導熱油鍋爐廠家整理發布,轉載請注明:http://www.seeaba.com.cn/baike/35711.html
燃氣鍋爐價格版權所有©導熱油鍋爐地址:江蘇省無錫市宜興周鐵鎮分水新達路76號 蘇ICP備11085805號-2